Aligarh Muzammil Extension
aligarh muzammil extension
A home expansion project was strategized to incorporate a kitchen and bathroom adjacent to an existing bedroom. A distinct entrance was introduced to the extended space, equipped with contemporary kitchen and bathroom utilities, all achieved within a cost-effective framework. The client’s goal was to transform the extension into a self-sufficient area suitable for rental or personal use. The objective encompassed the integration of comprehensive kitchen facilities, a designated laundry space, refrigerator allocation, a compact in-built table within the kitchen area, and specialized cabinets for both modern and customarily designed storage. Careful consideration was given to the layout of pipelines, encompassing drinking water, hot and cold domestic water lines, exhaust systems, drainage lines, and electrical lines, including socket points. This meticulous planning aimed to ensure the provision of all necessary amenities within the constraints of a limited space.
aligarh
16 sq yd
residential
2023

new proposal
Project requirement
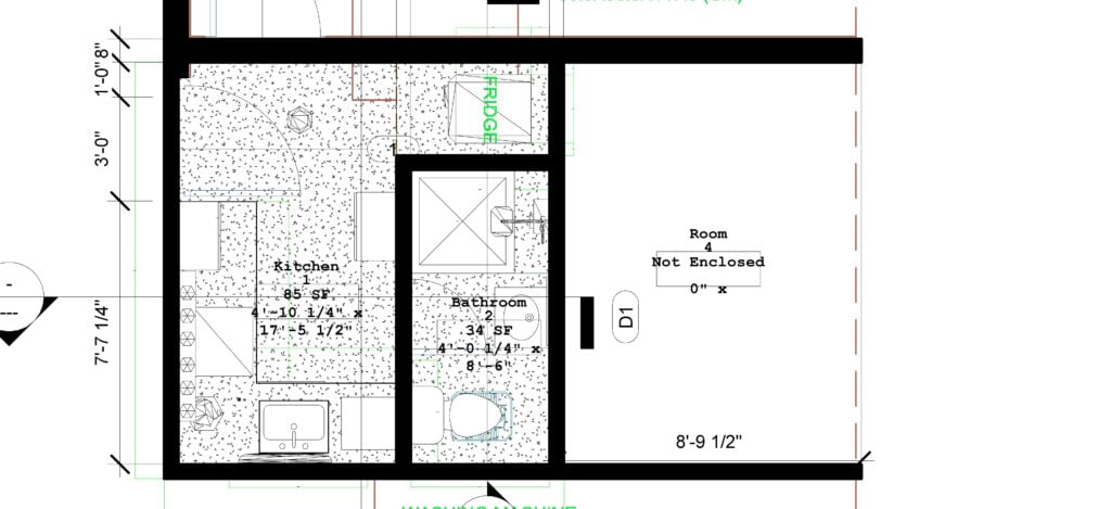
The client sought to optimize a limited area for an additional kitchen and bathroom, adjacent to an existing bedroom, aiming for minimal construction while incorporating modern amenities. Urban Front strategically planned all facilities within a 12′ x 12′ (144 sq ft) space, allocating 108 sq ft for the kitchen. A compact area was designated for a front-loaded washing machine. The proposal included 16″ wide single modular cabinetry, complemented by multiple traditional cabinets above the slab for storage of food items and utensils. A dedicated space for a refrigerator was integrated, alongside a wall-mounted, foldable dining table measuring 4′ x 2′.
modeling & massing
MEP planning & 3d massing
3D massing: A comprehensive 3D model was created to offer the client a detailed representation of how space would be allocated for different items. Handwritten notes were strategically incorporated to enhance space utilization.
MEP planning: A thorough blueprint detailing the layout for drinking water lines, drainage lines, hot and cold domestic water lines, electrical lines, and ventilation for both the bathroom and kitchen were meticulously planned and illustrated.

construction & procurement
Material selection
The extension of the kitchen and bathroom was conceptualized and built within a specified two-week timeframe. Subsequently, procurement processes for tiling, furniture, plumbing, electrical components, and painting were organized and carried out. Fixtures such as taps, mixers, bathroom and kitchen essentials, door hardware, shafts, and other necessary items were meticulously sourced and installed to meet the client’s requirements
Gallery
Urban Front is working towards to bring your Home dreams true
Our transparent working processes have led in the completion of over 1000 projects in the previous 10 years, all on the basis of assembling essential blueprints.
Discover Our Projects
project title
PL49 Beach Avenue
type
Residential
location
Ruislip, London, UK
pincode
HA4 8UG
area
675 sq yd
year
2021
scope
Architecture & 3D Massing



